Sobre mi
Hola, soc l’Arnau, un arquitecte establert a Barcelona format a l’ETSAB-UPC.
Em fascina l’urbanisme i entendre com funcionen les ciutats, però també m’apassiona el dibuix; valoro molt la força expressiva de la il·lustració en l’arquitectura. He gaudit molt amb els projectes que he realitzat durant la carrera i, al llarg d’aquest temps, he anat guanyant experiència treballant en diversos despatxos. Aquest portafoli recull el meu treball i la meva trajectòria fins ara.
Gràcies per fer-hi una ullada, espero que t’agradi!

CV
Formació
→
Setembre 2018 – Juny 2024
Escola Tècnica Superior d’Arquitectura de Barcelona (ETSAB, UPC)
GRAU UNIVERSITARI EN ESTUDIS D’ARQUITECTURA (GArqEtsaB)
Qualificat amb la Matricula d’honor a: Bases per a la Teoria, Matemàtiques II, Bases per al Projecte II, Urbanística II, Projectes IV, Urbanística IV, Representació Arquitectònica IV i Urbanística V
la Teoria, Matemàtiques II, Bases per al Projecte II, Urbanística II, Projectes IV, Urbanística IV, Representació Arquitectònica IV i Urbanística V
Nota al Treball Final de Carerra: 9.00
Nota Mitja de la Carerra: 7.85
→
Setembre 2024 – Setembre 2025
Escola Tècnica Superior d’Arquitectura de Barcelona (ETSAB, UPC)
MÀSTER UNIVERSITARI EN ARQUITECTURA (MArqEtsaB)
Nota al Projecte Final de Carerra: 9.00
→
Agost 2022 – Juliol 2023
Faculdade de Arquitectura e Urbanismo, Universidade de São Paulo (FAU-USP)
PROGRAMA DE MOBILITAT
→
Juny 2025 – Juliol 2025
Tongji University Shanghai, beca UPC
CURS D’ESTIU “Digital Islands for Urban Development”
→
Maig 2024 – Juliol 2024
Formaciones Geoinnova
CURSO DE QGIS: INTRODUCCIÓN A LOS SISTEMAS DE INFORMACIÓN GEOGRÁFICA
Expèriencia
→
Juliol 2020 – Gener 2021
AUXILIAR DE RECERCA AMB EULÀLIA GOMEZ ESCODA
Producció gràfica i suport per a la recerca “L’urbanisme de l’alimentació: polaritat i proximitat al voltant dels mercats municipals”.
Barcelona Quaderns d’Història, n. 29, setembre 2024, p. 477-494.
→
Juliol 2021 – Gener 2022
AUXILIAR DE RECERCA AMB EULÀLIA GOMEZ ESCODA
Producció gràfica i suport per a la recerca «Proximitat i temporalitat: El paper dels mercats setmanals en el sistema alimentari metropolità de Barcelona»
KANTAREK, A.A., et al. (eds.). XXIX International Seminar on Urban Form. ISUF 2022 Urban Redevelopment and Revitalisation. A Multidisciplinary Perspective. Lodz: Lodz University of Technology Press, 2023, pp. 380-391.
→
Gener 2022 – Juliol 2022
AUXILIAR DE RECERCA AMB CARLES CROSAS
Producció gràfica i suport per a la recerca “Les possibilitats del subsòl” amb l’equip de Carles Crosas, Joan Solà i Rosina Vinyes per a un encàrrec de l’Ajuntament de Barcelona.
→
Octubre 2023 – Febrer 2024
PROGRAMA DE PRÀCTIQUES A LEKU STUDIO
Treball en la participació i elaboració de material gràfic per a diferents projectes d’urbanisme tàctic a l’Àrea Metropolitana de Barcelona. Suport en la redacció de Projectes Executius. Actualització i manteniment de les
Xarxes socials del despatx.
→
Juliol 2020 – Gener 2022
AUXILIAR DE RECERCA AMB EULÀLIA GOMEZ ESCODA
Producció gràfica i suport per a la recerca «La permanència de l’estructura parcel·lària en la configuració de les plantes baixes: Una dissecció morfològica de quatre illes a la trama de l’Eixample de Barcelona«.
Built Environment, 51(2), pp. 255-273.
→
Abril 2024 – Juliol 2025
PROGRAMA DE PRÀCTIQUES A JORNETLLOPPASTOR ARQUITECTES
Col·laboració en l’elaboració de projectes executius per al desenvolupament de plans d’ordenació del territori: Pla d’ordenació de Bellaterra (Cerdanyola del Vallès), Pla Especial del Casc Antic de Coria (Extremadura), MPGM Clot-Camp de l’Arpa.
→
Octubre 2025 – Desembre 2025
Programa de cooperació internacional amb la UPC
Participació en el desenvolupament d’un projecte d’urbanisme tàctic a la favela de Rocinha, a Rio de Janeiro.
Premis i reconeixements
→
Novembre 2024
PREMI ALUMNI UPC
→
Maig 2025
MENICÓ HONORÍFICA PREMIS AJAC XIV
Pel Treball de Final de Grau “Na 25: un carrer comercial popular al centre de São Paulo”
Altres
Software & habilitats
AutoCAD
SketchUp
WordPress
Rhino + Grasshopper
QGIS
Adobe Photoshop
Adobe InDesign
Microsoft Office
Idiomes
Català: Natiu
Castellà: Natiu
Anglès: Nivell mitjà
Portuguès: Nivell mitjà
Més
Carnet de conduir
Carnet de monitor de lleure
Projectes
La fàbrica urbana
–
+
Juny 2025
Treball Final de Màster (TFM)
El treball final de màster, La Fàbrica Urbana, s’inscriu en la línia d’urbanisme del programa i es desenvolupa en el marc del taller del curs, centrat en la transformació i consolidació de l’entorn del riu Besòs.
Des del seu patrimoni industrial i el paper històric que ha tingut en el desenvolupament de Barcelona, el projecte planteja una estratègia que vol preservar el teixit productiu existent però obrint-lo a la ciutat i dotant-lo d’una nova dimensió urbana.
La proposta entén que la nau industrial pot evolucionar més enllà del seu ús original, esdevenint un equipament híbrid on conviuen la producció —reinterpretada amb tallers, laboratoris i espais d’innovació— amb nous programes: formació, habitatge, comerç i serveis de proximitat. Aquesta mixicitat funcional permet que l’activitat industrial perdi el seu caràcter exclusiu i passi a formar part d’un ecosistema més ampli, connectat amb la vida quotidiana del barri i amb la ciutat metropolitana. El projecte es relaciona de manera directa amb els eixos històrics que condueixen cap al riu, recuperant els antics camins i torrents com a connectors urbans.
La Fàbrica Urbana s’implanta com a peça clau dins un territori que es llegeix des de l’aigua, establint un diàleg entre el paisatge fluvial, el patrimoni construït i les noves dinàmiques socials i productives. Així, la Fàbrica Urbana no és només una rehabilitació arquitectònica, sinó també una proposta de regeneració urbana que interpreta el Besòs com a suport d’un model capaç d’integrar memòria, activitat i espai públic, projectant el futur del riu i del seu entorn en clau contemporània.
NA 25: Un carrer popular al centre de São Paulo
–
+
Juny 2024
Treball Final de Grau (TFG)
El Treball Final de Grau es va desenvolupar durant l’intercanvi acadèmic realitzat a la ciutat de São Paulo, Brasil, al llarg del curs 2022–2023. El treball se centra en l’anàlisi del comerç urbà a la Rua 25 de Março, un carrer situat al centre de São Paulo i reconegut com un dels principals eixos comercials populars de la ciutat.
A partir d’exploracions de camp realitzades durant l’estada i de la revisió de fonts secundàries, el treball construeix una narrativa destinada a explorar la complexitat del carrer des de la perspectiva dels seus diversos establiments comercials, posant en relleu les característiques que el defineixen i el diferencien d’altres espais urbans. En primer lloc, s’analitza la relació entre el carrer comercial popular i l’estructura general de la ciutat, amb l’objectiu d’aportar una mirada més àmplia sobre el seu paper dins del context urbà de São Paulo.
Posteriorment, el treball aprofundeix en l’estudi de quatre tipologies comercials presents a la Rua 25 de Março —la botiga, el mercat, la galeria comercial i el comerç ambulant—, explorant la manera com aquestes interactuen amb l’espai arquitectònic, la dinàmica urbana i les relacions que s’estableixen entre elles.
El projecte manifesta un interès especial per entendre i explicar la ciutat a través del dibuix, utilitzat com a eina d’anàlisi i de representació. El treball mostra una sensibilitat particular a l’hora de construir l’univers del carrer mitjançant el dibuix i el grafisme, com a instruments capaços de capturar la intensitat, la superposició d’usos i la complexitat dels escenaris urbans.
El Treball Final de Grau va ser reconegut amb una qualificació d’excel·lent a la universitat i va rebre el Premi als TFG de l’AJAC en la seva XIV edició, l’any 2025.
Can Trinxet: La fàbrica del parc
–
+
Juny 2022
PROJECTES VI
El projecte intervé en l’antiga fàbrica tèxtil de Can Trinxet a l’Hospitalet de Llobregat, un indret profundament vinculat al seu passat industrial. La proposta adopta una estratègia de «reciclatge pur», on tot el material que es treu de l’edifici —com la xapa de la coberta, el formigó del sòl o la ceràmica de la volta— es recicla i retorna en una nova forma, permetent que la fàbrica es transformi mantenint les seves capes històriques.
Un aspecte central de la intervenció és la recuperació del traçat original del canal de la Infanta per convertir el recinte en un espai drenant on la vegetació pugui créixer lliurement i l’aigua segueixi el seu cicle natural per al rec. Així mateix, el projecte anticipa el futur soterrament de les vies de l’R2 i l’R4, integrant l’edifici com una extensió d’un nou parc lineal sota el concepte de «la fàbrica del parc». Mentre la nau central es defineix com un espai de «no-programa» per potenciar l’experiència del parc, les altres dues naus es destinen a equipaments demandats pels veïns i veïnes del barri.
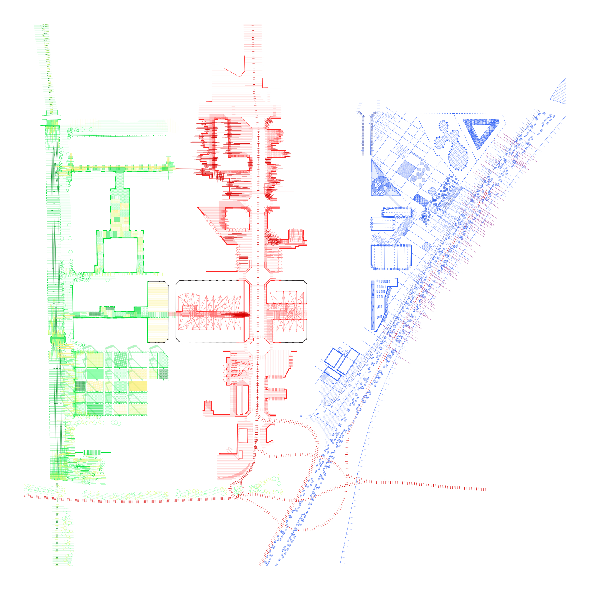
RGB: Una proposta de mixticitat urbana al polígon de Montsolís
–
+
Juny 2022
URBANISME IV
El polígon industrial de Montsolís, situat estratègicament entre Barcelona i Sant Adrià del Besòs, emergeix com un punt neuràlgic gràcies a la seva ubicació al costat del riu i a les excel·lents connexions de transport públic i privat amb la metròpolis. El projecte planteja una estratègia de regeneració urbana basada en la mixticitat d’usos com a eina per estendre els límits del barri i infondre-li una nova vida, incorporant nous programes i una població diversa, amb l’objectiu de convertir l’àmbit en un motor de transformació per a tota la zona.
La proposta es fonamenta en una lectura atenta de l’entorn existent, especialment de les empremtes deixades pels conjunts industrials i la xarxa viària actual. A partir d’aquesta anàlisi, el projecte RGB estructura la intervenció mitjançant la domesticació de tres eixos verticals clau —el carrer del Ferrocarril, el carrer Balmes i la Ronda Litoral—, als quals s’assigna un caràcter específic associat simbòlicament als colors vermell, verd i blau. Aquesta estratègia permet diferenciar usos i intensitats, alhora que construeix una lectura clara i coherent del conjunt.
El carrer del Ferrocarril —a l’esquerra i associat al verd— es reimagina com un espai vibrant i dinàmic, amb grans zones verdes i nous habitatges que afavoreixen la trobada entre la comunitat local i els visitants. El carrer Balmes —al centre i identificat amb el vermell— adopta un perfil principalment terciari, amb oficines i tallers que acullen l’activitat econòmica del barri i reforcen el seu caràcter productiu. Finalment, la Ronda Litoral —a la dreta i en blau— es concep com una franja activa vinculada al riu, amb accessos, equipaments i espais verds destinats a la recreació i a la relació directa amb el paisatge fluvial.
Centre d’interpretació agrària al Pla del Colomer
–
+
Gener 2022
PROJECTES V
El present projecte es desenvolupa en el marc del taller de 4t curs amb la temàtica de proposar un nou centre d’interpretació agrícola al Pla del Colomer, dins del Delta Agrari del Llobregat. L’exercici parteix de la voluntat de reflexionar sobre la implantació arquitectònica en un entorn d’alt valor productiu i paisatgístic, on la preservació del sòl agrícola esdevé una qüestió central.
Davant dels models extensius habituals, basats en una planta baixa contínua que ocupa i elimina superfície agrícola, el projecte planteja una proposta radical: concentrar el programa en alçada mitjançant una torre que allibera el sòl i minimitza l’impacte sobre el territori. Aquesta decisió permet mantenir la continuïtat visual del pla agrícola i reforçar la lectura horitzontal del paisatge.
La planta baixa es concep com un espai lliure i sense programa interior, que garanteix la continuïtat del verd i permet la inundabilitat del terreny en cas de pluja sense afectar l’interior de l’edifici. Aquesta estratègia respon tant a criteris ambientals com a una voluntat d’integració amb les dinàmiques naturals del delta.
El projecte mostra un interès específic en el disseny de l’estructura com a element expressiu, situada a l’exterior i resolta amb un color vermell que estableix un fort contrast amb el verd del paisatge agrícola. L’edifici s’organitza a partir d’una planta de 200 m² i es desenvolupa en sis nivells, configurant una peça vertical clara i recognoscible dins de l’horitzó del territori.
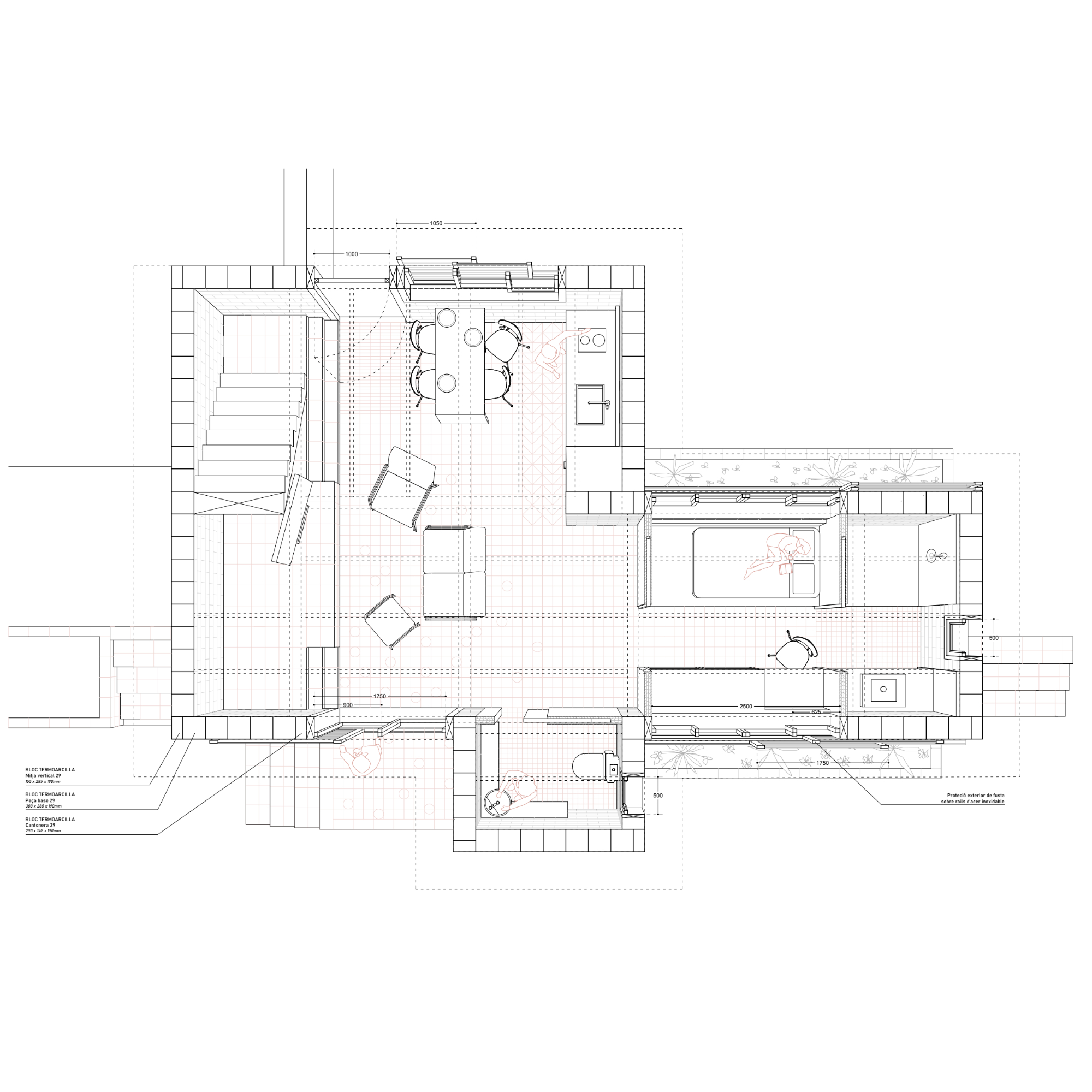
DICOTOMIA: Produir i viure en un entorn rural
–
+
Juny 2021
PROJECTES IV
El projecte Dicotomia, desenvolupat en el marc del taller d’habitatge de 3r curs, planteja un exercici de baixa densitat que busca consolidar un conjunt de parcel·les buides en un entorn rural. La intervenció se situa al Pla de la Font, un poble de colonització franquista a la plana de Lleida, i parteix de la voluntat d’entendre les lògiques urbanes i constructives d’aquest tipus d’assentaments per proposar una arquitectura domèstica contemporània, arrelada al lloc.
El projecte planteja l’agrupació de diferents unitats familiars dins d’una mateixa parcel·la, amb l’objectiu de fragmentar-la mitjançant una xarxa de recorreguts interns que generen una seqüència d’espais intermedis rics i flexibles. Aquesta estructura permet superar la lectura unitària de la parcel·la i afavoreix relacions diverses entre els habitatges, l’exterior i els espais compartits.
L’organització espacial es construeix a partir de la disposició de nuclis durs de termoargila que concentren els principals serveis de l’habitatge. Aquests elements actuen com a peces estructuradores que ordenen la parcel·la, defineixen els recorreguts i donen suport a una arquitectura més oberta i adaptable, capaç d’evolucionar amb les necessitats de les diferents unitats familiars.
El projecte explora així la dicotomia entre materials i les configuracions espacials que generen. L’entrega final recull l’últim estadi del procés, on s’ha buscat establir un diàleg entre el món més rígid dels murs i els elements encastats de termoargila, i la coberta lleugera, lliure i dinàmica de fusta que acaba de configurar l’espai domèstic.
































































